Kiadó iroda, üzlethelyiség Pécs belvárosában. Irodáink Pécs szívében, kedvező áron. Kiválló fekvésű irodahelyiségeink már 2000 ft/m2-től. Az irodapecs.hu pécsi irodaházak és üzlethelyiségek értékesítését végzi. Központi elhelyezkedés, kiválló tömegközlekedési adottságok (vasút, busz, autó), parkolási lehetőség közvetlen az irodaház mellett, szociális helységek, lifttel irodák légkondícionáltak, Telefon, internet csatlakoztatás biztosított.
 
Főoldal
Aktuális ajánlatok
Mevid irodaház
- Fotó
- Alaprajzok
- Referenciák
- Szolgáltatások
- Térkép
Kapcsolatok
Pécs
Linkajánló
 
Mevid irodaház - Alaprajzok

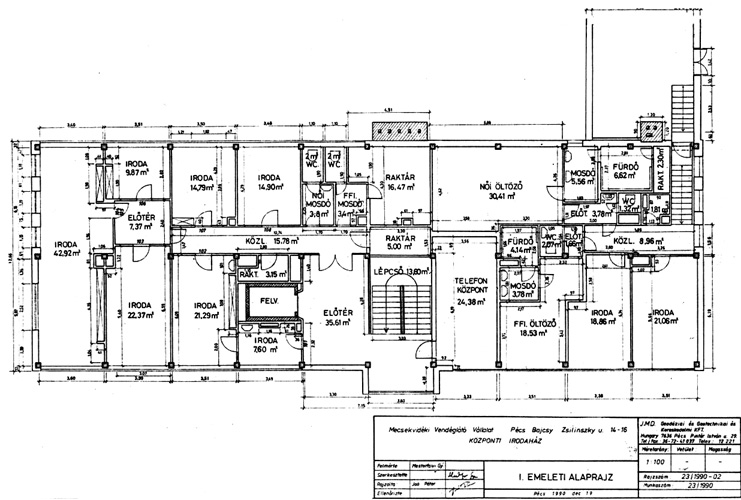
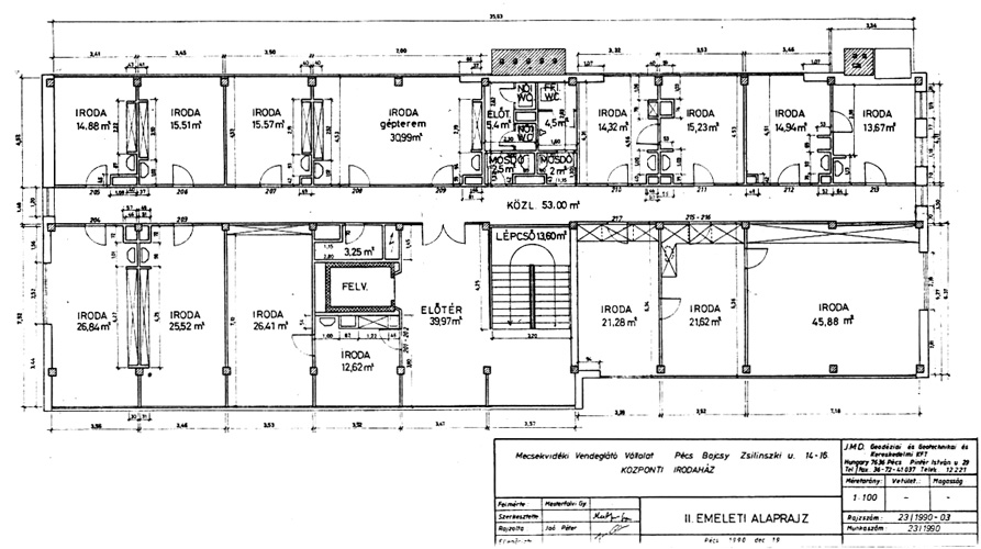
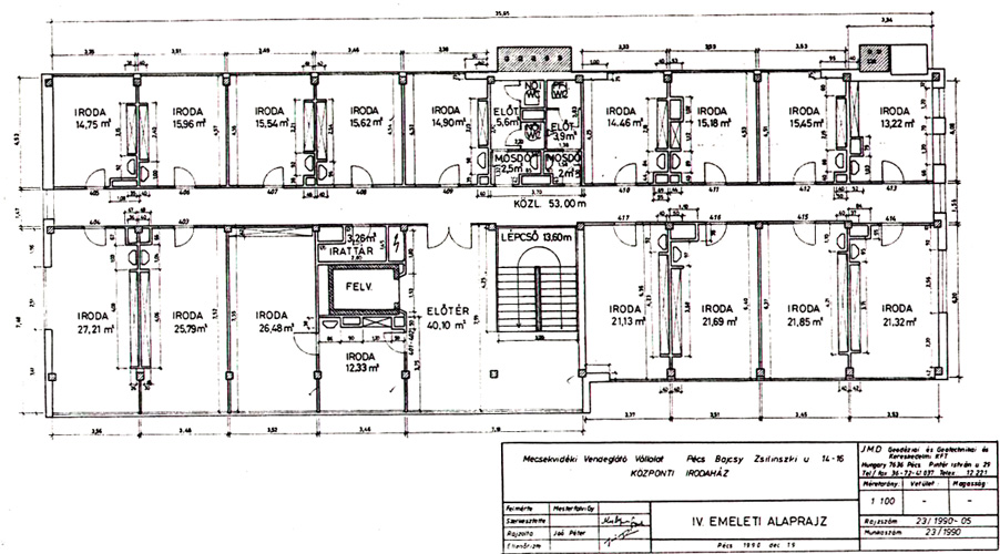
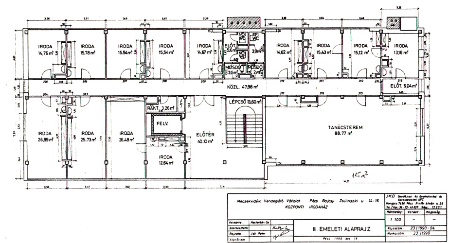
Pécs belvárosában kiadó irodáink a következő elrendezés szerint helyezkednek el. A négy emelet alaprajzát a képekre kattintva tekintheti meg. Jelenlegi ajánlatainkért kattintson ide!

Első emeleti alaprajz
Mevid irodaház első emeleti alaprajzok kiadó irodákkal
Második emeleti alaprajz
Mevid irodaház második emeleti alaprajzok kiadó irodákkal
Harmadik emeleti alaprajz
Mevid irodaház harmadik emeleti alaprajzok kiadó irodákkal
Negyedik emeleti alaprajz
Mevid irodaház negyedik emeleti alaprajzok kiadó irodákkal

 

 
2006 Mevid Rt. | 7622 Pécs, Bajcsy-Zsilinszky út 14-16. | +36-72-312-646 | +36-30-99-35-500 | mevid@mevid.hu | by K2Net